г. Москва, Очаковское шоссе
Светлый и красивый интерьер в новом доме в Москве. Кухня-гостиная получилась очень спокойной и расслабляющей, а спальня и детская — более колоритными.
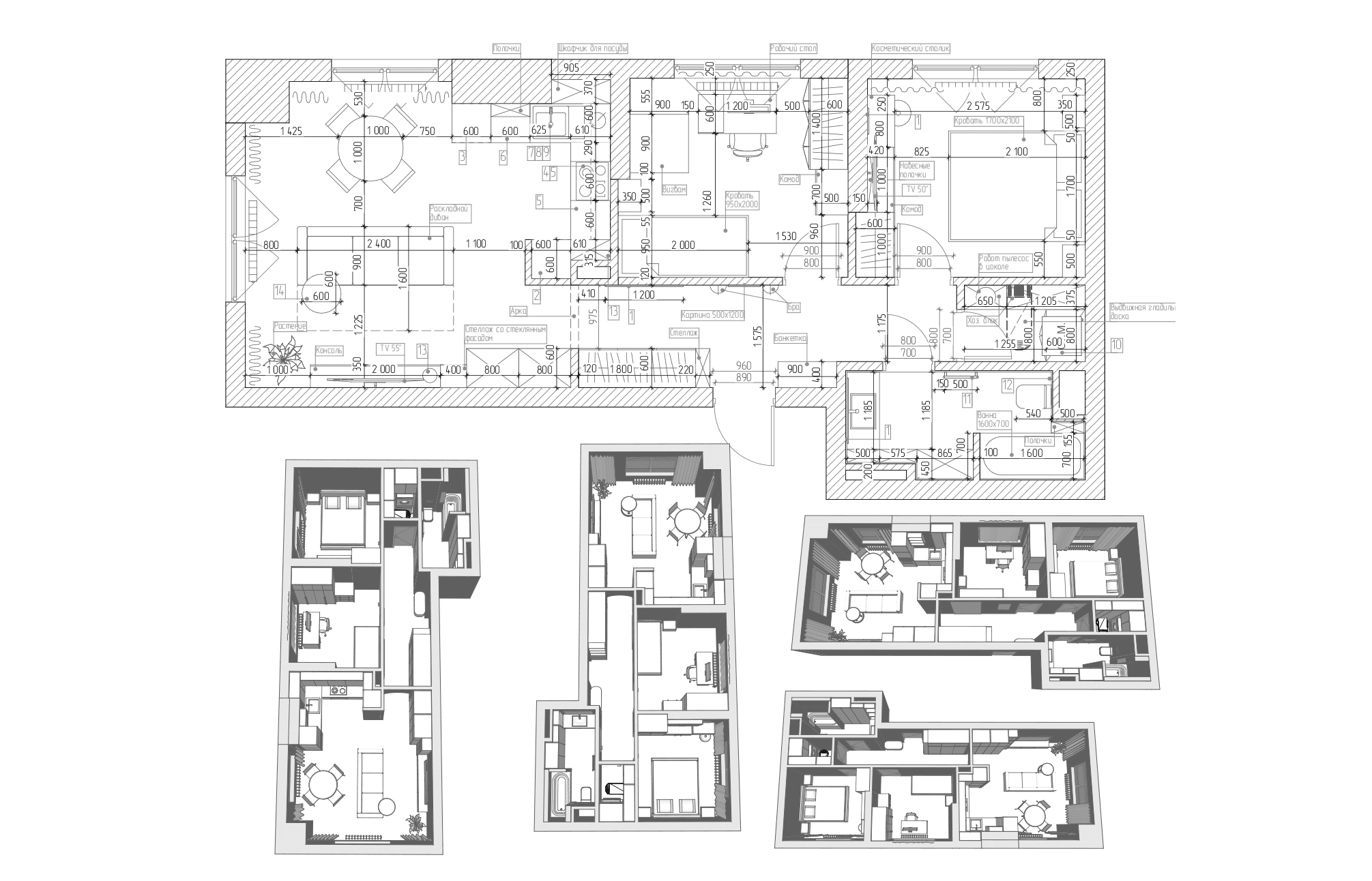
Кухня-гостиная
В гостиной задачей было сохранить стиль и подчеркнуть вид из окон, поскольку квартира расположена на 30-м этаже и имеет хорошую видовую составляющую.
В интерьере две большие боковые стены с широкими оконными проёмами. Мы постарались сделать так, чтобы мебель и освещение не отвлекали внимание от вида, а создавали спокойное, ненавязчивое пространство.
Диванная зона оформлена в светлых, нейтральных оттенках с модульной мебелью — низким диваном, который не загромождает интерьер и не отвлекает взгляд.
Кухня, напротив, чуть ярче, но спрятана в угол, чтобы не мешать общему восприятию. В результате интерьер получился светлым, практичным, уютным с максимальным акцентом на виде из окон.

Спальня
Перед нами стояла задача объединить несколько стилей в одном пространстве: минимализм, бохо, элементы лофта, контемпорари, а также лёгкий привкус прованса.
Заказчик хотел, чтобы спальня не выглядела вычурно и ярко, но при этом сохраняла винтажные детали и оставалась практичной.
Для этого мы в качестве декора выбрали молдинги, которые добавляют классический акцент. Освещение – интересные светильники с нотками винтажа.
Деревянное изголовье привносит естественность, лёгкость и современность, а обои под штукатурку отсылают к стилю лофт.
Контраст между светлой мебелью и «брутальными» бетонными обоями, создает интересный визуальный диалог.
Детская
Как и в спальне, в этой комнате смешалось сразу несколько стилевых направлений. Деревянная поверхность мебели отсылает к скандинавскому стилю, а молдинги — к классике.
Дизайнеры предусмотрели для ребенка функциональный столик, который будет и местом хранения, и рабочей зоной, и мольбертом. Для рисунком маленького Пикассо отведен участок стены с наилучшей освещенностью.
Ванная
В ванной комнате мы решили дать волю смелости и использовать насыщенные оттенки и выбрали выбрали стилевые направления контемпорари и ар-деко.
В интерьере появилась мелкоформатная ажурная напольная плитка — Метлахская.
Также добавили небольшую полуглянцевую глазурованную плитку “кабанчик”. Используем много дерева и зелёный цвет в сложном травяном оттенке.
Дополняют интерьер бионическое зеркало и латунная сантехника в итальянском ретро-стиле, которая гармонично завершает общий образ комнаты.