Lipki Village
Заказчики — это семья, которая имеет безупречный вкус на элегантность и качество. Они сами определились со стилем и хотели именно элегантную современную классику в сочетании с модерном.
В интерьере применены разные цветовые акценты от охры до тиффани — и это была одна из главных задач дизайнеров.
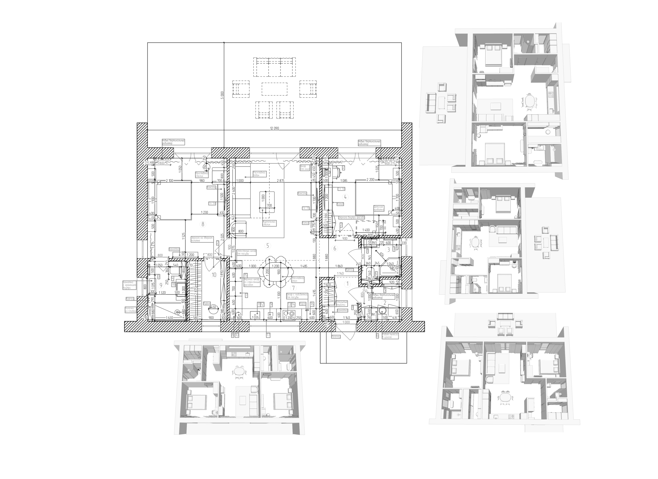
Кухня-гостиная
В общей зоне кухни-гостиной мы работали над созданием в первую очередь уютного интерьера, поэтому в отделке мебели и стен так много дерева.
А при выборе текстиля для дивана и кресел мы сделали фокус на более ярких цветах.
Интересное решение мы применили для кухонного фартука, где добавили натуральный кафель белорусского производства вместо привычной плитки или керамогранита.
Не обошлись без акцентных аксессуаров: лампы на бюро. Так как это интерьер загородного дома, то у нас появляется и натуральный камин.

Спальня
Спальня довольно просторная, поэтому мы добавили больше акцента в цвете тиффани и разнообразие отвлекающие детали в виде рельефных панелей и зеркал.
Эта комната отличается по своему дизайну относительно интерьера всего дома, ее стиль — гламурный шик. Сочетание зеркал, хрусталя в люстре, текстиля и геометрией.
Мастер-душевая
Это душевая хозяев, она имеет вход только из мастер-спальни. Поэтому сюда мы подбирали идеальный керамогранит, который отлично подходит по концепции и идее, и красиво продолжает цветовое решение спальни.
Мы подобрали керамогранит от итальянской фабрики с оригинальной прожилкой камня, которая красиво поддерживает рисунок в более светлом керамограните-компаньоне.
Гостевая
Гостевая спальня выделяется сложными оттенками сиреневого, серого и бирюзового. Она дополняет общую концепцию дома, но имеет чуть более деликатное решение по цветам. Здесь мы используем красивую геометрию и молдинги на стенах как элемент современной классики.
Стоит обратить внимание на детали: красивая обивка кровати, бархатные шторы и фрезеровка на фасадах, дополняющая молдинги.